i-works4.0(都城の家)
atelierMingのモデルハウス、i-works4.0(都城の家)は
毎週日曜日に見学が可能です。
毎週日曜日 朝10:00-夕方5:00 オープンしております。
ご予約不要でご見学可能です。
※お願い
本モデルハウスは一般のお客様を対象としたモデルハウスとなっております。誠に申し訳ございませんが、建築関係者・同業者の方の見学はご遠慮いただいております。
ご理解とご協力のほど、よろしくお願い申し上げます。


atelier Mingの家づくりのシグネチャーモデルとして
i-works4.0(都城の家)は、設計を建築家伊礼智氏が、造園を日本造園学会賞を受賞された荻野寿也氏が手掛け、atelier Mingがこれからここ都城で提案していく家づくりを象徴したものになっています。
i-works4.0(都城の家)
モデルハウスi-works4.0(都城の家)は、伊礼智氏が提案する標準化住宅i-worksの4.0を、ここ都城での家づくりにふさわしいカスタムを施したスペシャルバージョンです。
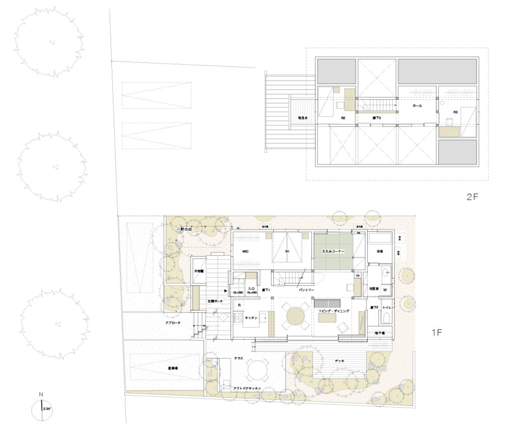
プラン

スタンダードなi-works4.0より部屋数を増やすことで、家族四人でもゆったりと暮らすことができる空間を確保しました。
| モデルハウス i-works4.0(都城の家)概要 | |||
|---|---|---|---|
| 面積 | 1F床面積 / 81.00㎡ 24.50坪 | 基礎断熱 | スタイロフォーム 100t |
| 2F床面積 / 29.75㎡ 9.00坪 | 断熱 | シュタイコ (木質系繊維断熱材) | |
| 延床面積 / 110.75㎡ 33.5坪 | ネオマフォーム 120t | ||
| 仕上げ | 外壁 / そとん壁 他 | ||
| 内壁 / 中霧島壁 他 | |||
特別対談 伊礼智 × 久永祐司

モデルハウスオープンに先立ち、建築家伊礼智氏とatelier Ming代表の久永が対談しました。なぜ、伊礼氏に設計を依頼したのか?i-works4.0(都城の家)はどこがスタンダードモデルと違うのか、をぜひご確認ください。
特別対談 新留昌泰 × 伊礼智 × 久永祐司

atelierMing代表・久永祐司、建築家・伊礼智氏、高千穂シラス株式会社代表・新留昌泰氏による特別対談。
シラス壁の開発秘話から、驚きの効果・効能・機能まで──
自然素材の魅力を深く掘り下げた貴重な内容です。
心地よい住まいづくりのヒントがきっと見つかります。
「都城の家」 RoomTour 伊礼智 × 久永祐司

建築家・伊礼智氏による「都城の家」の解説になります。
使用している材料やサッシ、家具を含め詳しく説明をしていただいております。
ぜひ御覧ください。

モデルハウス見学予約受付中
モデルハウスは2025年11月15日・16日にグランドオープンいたしました。見学をご希望の方は、下記リンクよりお知らせ下さい。
モデルハウスはこちら 〒885-0018 宮崎県都城市郡元4丁目4-32












